Quy hoạch chi tiết tỷ lệ 1/500 dự án xây dựng Nhà ở cho lực lượng vũ trang công an nhân dân tại khu đất ký hiệu C3 thuộc Quy hoạch phân khu đô thị S3, tại xã Sơn Đồng, thành phố Hà Nội

19:16 19/09/2025

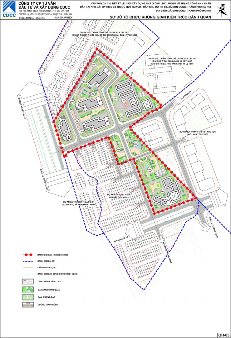
Ngày 19/9/2020, UBND xã Sơn Đồng ban hành Thông báo về việc niêm yết công khai và tổ chức hội nghị lấy ý kiến cộng đồng dân cư về Quy hoạch chi tiết tỷ lệ 1/500 dự án xây dựng Nhà ở cho lực lượng vũ trang công an nhân dân tại khu đất ký hiệu C3 thuộc Quy hoạch phân khu đô thị S3, tại xã Sơn Đồng, thành phố Hà Nội. Địa điểm: xã Sơn Đồng, thành phố Hà Nội.

Hiện nay, Chủ đầu tư dự án - Công ty cổ phần Confitech Tây Hà Nội phối hợp cùng đơn vị tư vấn Công ty CP tư vấn đầu tư và xây dựng CDCC đang triển khai lập Quy hoạch chi tiết tỷ lệ 1/500 dự án xây dựng Nhà ở cho lực lượng vũ trang công an nhân dân tại khu đất ký hiệu C3 thuộc Quy hoạch phân khu đô thị S3.

Quy hoạch chi tiết tỷ lệ 1/500 dự án xây dựng Nhà ở cho lực lượng vũ trang công an nhân dân tại khu đất ký hiệu C3 thuộc Quy hoạch phân khu đô thị S3, tại xã Sơn Đồng, thành phố Hà Nội- Ảnh 1.

Để triển khai lập quy hoạch được đồng bộ, khớp nối với hạ tầng kỹ thuật xung quanh khu vực dự án, đảm bảo đúng các quy định hiện hành, UBND xã Sơn Đồng thông báo lấy ý kiến cộng đồng dân cư về phương án Quy hoạch chi tiết tỷ lệ 1/500 dự án xây dựng Nhà ở cho lực lượng vũ trang công an nhân dân tại khu đất ký hiệu C3 thuộc Quy hoạch phân khu đô thị S3.

I. Thời gian lấy ý kiến và thu thập ý kiến cộng đồng dân cư:

Trong thời gian: 20 ngày kể từ ngày có Thông báo.

II. Hình thức và Địa điểm lấy ý kiến và thu thập phiếu ý kiến cộng đồng dân cư: 

1. Hình thức:

- Tổ chức hội nghị báo cáo, xin ý kiến cộng đồng dân cư về đồ án quy hoạch bằng phiếu xin ý kiến.

-Trưng bày công khai phương án quy hoạch tỷ lệ 1/500 tại Ủy ban nhân xã Sơn Đồng và trang thông tin điện tử của UBND xã.

- Hộ gia đình, cá nhân và cộng đồng dân cư có đóng góp ý kiến về phương án quy hoạch liên hệ trực tiếp tại phòng Kinh tế xã Sơn Đồng để được hướng dẫn chi tiết theo quy định.

2. Thời gian - Địa điểm tổ chức hội nghị

- Hội nghị tổ chức vào 14h00 ngày 23/9/2025 tại Hội trường lớn – UBND xã Sơn Đồng.

UBND xã  thông báo công khai đến toàn thể các hộ gia đình, cá nhân và cộng đồng dân cư được biết và tham gia đóng góp ý kiến về Quy hoạch chi tiết tỷ lệ 1/500 dự án xây dựng Nhà ở cho lực lượng vũ trang công an nhân dân tại khu đất ký hiệu C3 thuộc Quy hoạch phân khu đô thị S3, xã Sơn Đồng, thành phố Hà Nội./

Chi tiết Văn bản xem tại đây:

Tin đọc nhiều

Hội Chữ thập đỏ Việt Nam xã Sơn Đồng đại hội đại biểu lần thứ I, nhiệm kỳ 2026 - 2031

15:00 13/05/2026

Sáng 13/5, Hội Chữ thập đỏ xã Sơn Đồng tổ chức Đại hội đại biểu Hội Chữ thập đỏ xã Sơn Đồng lần thứ I, nhiệm kỳ 2026 - 2031.

Sơn Đồng tổ chức chi trả bồi thường, hỗ trợ, tái định cư Dự án Depot Sơn Đồng cho 38 hộ dân

14:22 13/05/2026

Chiều 12/5, UBND xã, Ban Quản lý dự án đầu tư - hạ tầng xã Sơn Đồng tổ chức chi trả kinh phí bồi thường, hỗ trợ, tái định cư cho các hộ gia đình, cá nhân có đất và tài sản trên đất thuộc diện thu hồi phục vụ Dự án thành phần 1: Bồi thường, hỗ trợ, tái định cư, thu hồi đất, di chuyển công trình hạ tầng kỹ thuật và san nền Depot Sơn Đồng thuộc dự án đầu tư xây dựng tuyến đường sắt đô thị số 5 Văn Cao - Ngọc Khánh - Láng - Hòa Lạc.

Đoàn giám sát Ban Văn hóa - Xã hội HĐND xã Sơn Đồng giám sát đối với Trạm Y tế

14:08 13/05/2026

Sáng 12/5, Đoàn giám sát của Ban Văn hóa – Xã hội HĐND xã Sơn Đồng triển khai hoạt động giám sát đối với Trạm Y tế xã Sơn Đồng nhằm đánh giá toàn diện tình hình thực hiện nhiệm vụ y tế cơ sở, công tác chăm sóc sức khỏe ban đầu cho Nhân dân.

Thông báo về việc niêm yết công khai, lấy ý kiến về Nhiệm vụ điều chỉnh Quy hoạch và Đồ án điều chỉnh Quy hoạch chi tiết dự án Khu nhà ở cao cấp CIRI tỷ lệ 1/500, xã Sơn Đồng

09:47 12/05/2026

Ngày 12/5/2026, UBND xã Sơn Đồng ban hành Thông báo số 1324/TB-UBND về việc niêm yết công khai, tổ chức hội nghị lấy ý kiến cộng đồng dân cư về Nhiệm vụ điều chỉnh Quy hoạch và Đồ án điều chỉnh Quy hoạch chi tiết dự án Khu nhà ở cao cấp CIRI tỷ lệ 1/500. Địa điểm: xã Sơn Đồng, thành phố Hà Nội.

Tin cùng chuyên mục
Xem theo ngày
Xem
Quyết định về việc giao đất cho 25 trường hợp tại khu đất đấu giá quyền sử dụng đất xứ đồng Lòng Khúc, xã Sơn Đồng
Quyết định về việc giao đất cho 25 trường hợp tại khu đất đấu giá quyền sử dụng đất xứ đồng Lòng Khúc, xã Sơn Đồng
Ngày 08/5/2026, UBND xã Sơn Đồng ban hành 25 Quyết định về việc giao đất ở nông thôn tại khu đất đấu giá quyền sử dụng đất xứ đồng Lòng Khúc, xã Tiền Yên, huyện Hoài Đức, thành phố Hà Nội (nay là xã Sơn Đồng, thành phố Hà Nội)
08:41 11/05/2026
Thông báo về việc công khai kết quả kiểm tra hồ sơ đăng ký, cấp giấy chứng nhận quyền sử dụng đất, quyền sở hữu nhà ở và tài sản khác gắn liền với đất của ông Nguyễn Trạc Lương
Thông báo về việc công khai kết quả kiểm tra hồ sơ đăng ký, cấp giấy chứng nhận quyền sử dụng đất, quyền sở hữu nhà ở và tài sản khác gắn liền với đất của ông Nguyễn Trạc Lương
Ngày 08/5/2026, UBND xã Sơn Đồng ban hành Thông báo số 1320/TB-UBND về việc công khai kết quả kiểm tra hồ sơ đăng ký, cấp giấy chứng nhận quyền sử dụng đất, quyền sở hữu nhà ở và tài sản khác gắn liền với đất
08:59 08/05/2026
PHÒNG GIAO DỊCH NGÂN HÀNG CHÍNH SÁCH XÃ HỘI HOÀI ĐỨC TRIỂN KHAI CHÍNH SÁCH TÍN DỤNG MỚI - TIẾP SỨC NGƯỜI SAU CAI NGHIỆN MA TÚY LÀM LẠI CUỘC ĐỜI
PHÒNG GIAO DỊCH NGÂN HÀNG CHÍNH SÁCH XÃ HỘI HOÀI ĐỨC TRIỂN KHAI CHÍNH SÁCH TÍN DỤNG MỚI - TIẾP SỨC NGƯỜI SAU CAI NGHIỆN MA TÚY LÀM LẠI CUỘC ĐỜI
Việc giúp đỡ người sau cai nghiện ma túy tái hòa nhập cộng đồng, tìm kiếm việc làm và ổn định cuộc sống là trách nhiệm của toàn xã hội, đồng thời là biện pháp căn cơ để ngăn chặn nguy cơ tái nghiện. Thấu hiểu những khó khăn về kinh tế cũng như sự kỳ thị mà người sau cai nghiện gặp phải, Thủ tướng Chính phủ đã ban hành Quyết định số 08/2026/QĐ-TTg về chính sách tín dụng đối với người sau cai nghiện ma túy, chính thức có hiệu lực từ ngày 01/5/2026.
08:33 24/04/2026
Triển khai thực hiện Điều tra các cơ sở hành chính, sự nghiệp trên địa bàn xã Sơn Đồng năm 2026.
Triển khai thực hiện Điều tra các cơ sở hành chính, sự nghiệp trên địa bàn xã Sơn Đồng năm 2026.
Căn cứ quyết định số 185/QĐ-BNV ngày 13/02/2026 của Bộ Nội vụ về ban hành Kế hoạch triển khai thực hiện Phương án điều tra cơ sở hành chính, sự nghiệp năm 2026 (Thay thế quyết định số 141/QĐ-BNV ngày 02/02/2026 của Bộ Nội vụ); Thực hiện công văn số 1175/SNV-KHTC ngày 02/3/2026 của Sở Nội vụ Thành phố Hà Nội về việc triển khai thực hiện Điều tra cơ sở hành chính, sự nghiệp trên địa bàn thành phố Hà nội năm 2026.
16:15 28/03/2026
Thông báo: Cầu Yên Thái ngập sâu, người và các phương tiện chấp hành sự điều tiết của lực lượng chức năng
Thông báo: Cầu Yên Thái ngập sâu, người và các phương tiện chấp hành sự điều tiết của lực lượng chức năng
Do ảnh hưởng của hoàn lưu cơn bão số 10 gây mưa lớn kéo dài. Hiện nay, mực nước sông Đáy dâng cao khiến cầu Yên Thái bị ngập nước. Ban Chỉ huy phòng thủ dân sự xã Sơn Đồng đã triển khai lực lượng chốt trực.
08:31 01/10/2025
Thông báo niêm yết công khai về việc mất Giấy chứng nhận quyền sử dụng đất số DG310663 do Sở Tài nguyên và Môi trường thành phố Hà Nội cấp ngày 30/6/2022 cho ông Nguyễn Văn Vượng
Thông báo niêm yết công khai về việc mất Giấy chứng nhận quyền sử dụng đất số DG310663 do Sở Tài nguyên và Môi trường thành phố Hà Nội cấp ngày 30/6/2022 cho ông Nguyễn Văn Vượng
Ngày 19/9/2025, UBND xã Sơn Đồng ban hành Thông báo số 230/TB-UBND về việc niêm yết công khai về việc mất Giấy chứng nhận quyền sử dụng đất số DG310663 do Sở Tài nguyên và Môi trường thành phố Hà Nội cấp ngày 30/6/2022 cho ông Nguyễn Văn Vượng
10:36 20/09/2025
Tin khác
Hội Chữ thập đỏ Việt Nam xã Sơn Đồng đại hội đại biểu lần thứ I, nhiệm kỳ 2026 - 2031
Hội Chữ thập đỏ Việt Nam xã Sơn Đồng đại hội đại biểu lần thứ I, nhiệm kỳ 2026 - 2031
Sáng 13/5, Hội Chữ thập đỏ xã Sơn Đồng tổ chức Đại hội đại biểu Hội Chữ thập đỏ xã Sơn Đồng lần thứ I, nhiệm kỳ 2026 - 2031.
15:00 13/05/2026
Sơn Đồng tổ chức chi trả bồi thường, hỗ trợ, tái định cư Dự án Depot Sơn Đồng cho 38 hộ dân
Sơn Đồng tổ chức chi trả bồi thường, hỗ trợ, tái định cư Dự án Depot Sơn Đồng cho 38 hộ dân
Chiều 12/5, UBND xã, Ban Quản lý dự án đầu tư - hạ tầng xã Sơn Đồng tổ chức chi trả kinh phí bồi thường, hỗ trợ, tái định cư cho các hộ gia đình, cá nhân có đất và tài sản trên đất thuộc diện thu hồi phục vụ Dự án thành phần 1: Bồi thường, hỗ trợ, tái định cư, thu hồi đất, di chuyển công trình hạ tầng kỹ thuật và san nền Depot Sơn Đồng thuộc dự án đầu tư xây dựng tuyến đường sắt đô thị số 5 Văn Cao - Ngọc Khánh - Láng - Hòa Lạc.
14:22 13/05/2026
Đoàn giám sát Ban Văn hóa - Xã hội HĐND xã Sơn Đồng giám sát đối với Trạm Y tế
Đoàn giám sát Ban Văn hóa - Xã hội HĐND xã Sơn Đồng giám sát đối với Trạm Y tế
Sáng 12/5, Đoàn giám sát của Ban Văn hóa – Xã hội HĐND xã Sơn Đồng triển khai hoạt động giám sát đối với Trạm Y tế xã Sơn Đồng nhằm đánh giá toàn diện tình hình thực hiện nhiệm vụ y tế cơ sở, công tác chăm sóc sức khỏe ban đầu cho Nhân dân.
14:08 13/05/2026
Thông báo về việc niêm yết công khai, lấy ý kiến về Nhiệm vụ điều chỉnh Quy hoạch và Đồ án điều chỉnh Quy hoạch chi tiết dự án Khu nhà ở cao cấp CIRI tỷ lệ 1/500, xã Sơn Đồng
Thông báo về việc niêm yết công khai, lấy ý kiến về Nhiệm vụ điều chỉnh Quy hoạch và Đồ án điều chỉnh Quy hoạch chi tiết dự án Khu nhà ở cao cấp CIRI tỷ lệ 1/500, xã Sơn Đồng
Ngày 12/5/2026, UBND xã Sơn Đồng ban hành Thông báo số 1324/TB-UBND về việc niêm yết công khai, tổ chức hội nghị lấy ý kiến cộng đồng dân cư về Nhiệm vụ điều chỉnh Quy hoạch và Đồ án điều chỉnh Quy hoạch chi tiết dự án Khu nhà ở cao cấp CIRI tỷ lệ 1/500. Địa điểm: xã Sơn Đồng, thành phố Hà Nội.
09:47 12/05/2026
Thực hiện Luật Trí tuệ nhân tạo 2025 và Nghị định số 142/2026/NĐ-CP
Thực hiện Luật Trí tuệ nhân tạo 2025 và Nghị định số 142/2026/NĐ-CP
Luật Trí tuệ nhân tạo 2025 được Quốc hội thông qua ngày 10/12/2025 và có hiệu lực từ ngày 01/3/2026. Tiếp đó, Chính phủ ban hành Nghị định số 142/2026/NĐ-CP ngày 30/4/2026, có hiệu lực từ ngày 01/5/2026 nhằm hướng dẫn cụ thể việc triển khai thi hành luật trong thực tiễn.
11:08 11/05/2026
Sơn Đồng biểu dương các tập thể tiêu biểu trong phong trào xây dựng môi trường sáng, xanh, sạch, đẹp quý I năm 2026
Sơn Đồng biểu dương các tập thể tiêu biểu trong phong trào xây dựng môi trường sáng, xanh, sạch, đẹp quý I năm 2026
Chiều 07/5, UBND xã Sơn Đồng tổ chức Hội nghị sơ kết Cuộc thi “Giữ gìn thôn sáng, xanh, sạch, đẹp” và mô hình “Trường học xanh, sạch, đẹp, an toàn, thân thiện” quý I năm 2026. Đồng chí Nguyễn Duy Cương - Ủy viên Ban Thường vụ Đảng ủy, Phó Chủ tịch UBND xã chủ trì hội nghị.
09:37 11/05/2026
Sơn Đồng - hành trình đưa tinh hoa thủ công mỹ nghệ Việt ra thế giới
Sơn Đồng - hành trình đưa tinh hoa thủ công mỹ nghệ Việt ra thế giới
Tối 08/5, tại Hoàng thành Thăng Long, UBND thành phố Hà Nội tổ chức Lễ đón nhận danh hiệu làng nghề điêu khắc sơn mỹ nghệ Sơn Đồng là thành viên của Mạng lưới các thành phố thủ công sáng tạo thế giới và khai mạc sự kiện trưng bày, trình diễn và tạo tác sản phẩm thủ công mỹ nghệ làng nghề.
09:28 11/05/2026
Sơn Đồng đón Đoàn Hội đồng Thủ công Thế giới tham quan làng nghề truyền thống
Sơn Đồng đón Đoàn Hội đồng Thủ công Thế giới tham quan làng nghề truyền thống
Sáng 09/5, xã Sơn Đồng đón tiếp Đoàn khách quốc tế thuộc Hội đồng Thủ công Thế giới đến tham quan, tìm hiểu làng nghề trong khuôn khổ chương trình tổ chức Lễ đón nhận làng nghề điêu khắc sơn mỹ nghệ Sơn Đồng trở thành thành viên Mạng lưới các Thành phố thủ công sáng tạo thế giới
09:16 11/05/2026
Đoàn giám sát Ban Văn hóa - Xã hội HĐND xã Sơn Đồng kiểm tra công tác y tế cơ sở tại các Điểm Trạm
Đoàn giám sát Ban Văn hóa - Xã hội HĐND xã Sơn Đồng kiểm tra công tác y tế cơ sở tại các Điểm Trạm
Chiều 07/5, Đoàn giám sát của Ban Văn hóa - Xã hội HĐND xã Sơn Đồng đã tổ chức kiểm tra, giám sát công tác y tế cơ sở và chăm sóc sức khỏe Nhân dân tại các Điểm Trạm: Song Phương, Tiền Yên, Lại Yên và Sơn Đồng.
09:18 08/05/2026
Sơn Đồng tổ chức lấy ý kiến về điều chỉnh tổng thể Quy hoạch Khu trung tâm thương mại dịch vụ và nhà ở cao cấp An Khánh
Sơn Đồng tổ chức lấy ý kiến về điều chỉnh tổng thể Quy hoạch Khu trung tâm thương mại dịch vụ và nhà ở cao cấp An Khánh
Sáng 07/5, UBND xã Sơn Đồng tổ chức hội nghị lấy ý kiến các cơ quan, tổ chức, cá nhân và cộng đồng dân cư đối với nhiệm vụ đồ án Điều chỉnh tổng thể Quy hoạch chi tiết Khu trung tâm thương mại dịch vụ và nhà ở cao cấp An Khánh, tỷ lệ 1/500.
09:10 08/05/2026